Cấu tạo chính của hệ thống đường ống nước nhà vệ sinh
Để đảm bảo hoạt động hiệu quả của hệ thống vệ sinh trong nhà, việc lắp đặt đường ống nước là một yếu tố cực kỳ quan trọng. Hệ thống cấp thoát nước thông thường sẽ bao gồm:
- Hệ thống cung cấp nước với các thành phần như đồng hồ nước, đường nước vào bể âm ở tầng trệt, bể âm, đường ống cấp nước lên bồn (bể) nước trên mái, bồn (bể) nước trên mái, bồn nước nóng năng lượng mặt trời,, thiết bị đóng ngắt, đường ống cấp nước nóng lạnh từ các bể trên mái, máy bơm trung chuyển nước, máy bơm tăng áp.
- Đường ống thoát nước cũng không thể thiếu thông thường sẽ bao gồm ống thoát nước mưa, ống thoát nước thải, ống thoát phân và ống thông hơi, các phễu thu sàn, con thỏ chống hôi, cầu chắn rác và bể tự hoại.
- Thiết bị sử dụng nước: bao gồm vòi bếp, máy rửa chén, máy giặt, chậu rửa mặt, bồn tắm, bồn cầu và chậu rửa tay,...

Cấu tạo chính của một hệ thống đường nước nhà vệ sinh
Trong bài viết này, Chúng tôi sẽ tập trung chỉ vào cách lắp đặt đường ống nước trong nhà vệ sinh. Chúng tôi xin nhắc đến những loại đường ống trong nhà, những thiết bị cần thiết và phương pháp lắp đặt chúng. Trong bài viết này, chúng tôi không đề cập đến các thiết bị hỗ trợ như van tự động và máy bơm.
Hệ thống ống cấp nước:
Vật liệu ống:
Đối với các công trình nhà ở dân dụng hiện tại, ống PPR luôn được tin dùng cho hệ thống ống cấp nước vì là loại nhựa sạch, không có tạp chất đảm bảo được độ tinh khiết của nước. Ngoài ra khả năng dẫn nước có nhiệt độ cao (từ 70 đến 110 độ C), phù hợp với nhu cầu sử dụng nước nóng và lạnh. Một lưu ý khi sử dụng ống PPR chủ đầu tư cần phải lưu ý là:
- Phải sử dụng ống PPR chuyên dùng cho hệ thống nước nóng khi thi công đường ống nước cấp cho hệ thống nước nóng.
- Không sử dụng ống PPR cho các vị trí tiếp xúc trực tiếp với ánh nắng mặt trời, phải che chắn hoặc dùng vật liệu khác như PVC hoặc PE.
- Đảm bảo lựa chọn đường ống nước theo đúng áp lực nước thiết kế.

Thi công ống PPR cho hệ thống ống cấp nước
Vị trí lắp đặt đường ống:
Đường ống nước cấp nên được thi công ở các vị trí thuận tiện cho việc bảo trì, bảo dưỡng và sửa chữa khi xảy ra sự cố.Phải có cửa thăm và cửa thăm kích thước phải phù hợp (thông dụng là 400 x 400mm) để thuận tiện trong quá trình bảo trì và sửa chữa đường ống.
Các trục nước chính nên được đi trong hộp gen và đối với các đường ống trên tường phải thể hiện vị trí chính xác ở bản vẽ hoàn công để thuận tiện cho việc sửa chữa sau này cũng như tránh các trường hợp các công đoạn thi công khác làm thủng ống khi khoan hoặc đập phá.
Lựa chọn kích thước ống:
Về kích thước ống thì khi thi công phải tuân thủ theo bản vẽ thiết kế, do trong quá trình thiết kế đội ngũ kỹ sư đã tính toán kỹ nhu cầu sử dụng nước và đề xuất kích thước đường ống nước phù hợp. Thông thường, đường ống cấp đến thiết bị sử dụng nước như vòi, sen tắm, máy giặt, máy rửa chén, vòi xịt, bồn cầu,... sẽ là ống có đường kính Φ 20mm và được kết nối với phụ kiện có ren ngoài để kết nối với các thiết bị nêu trên..
Kết nối với các thiết bị sử dụng nước:
Cao độ lắp đặt của điểm chờ kết nối cho các thiết bị nước (tính từ mặt sàn):
- Bồn cầu: 150mm.
- Chậu rửa và chậu bếp: 650mm.
- Sen tắm: 850mm.
- Vòi nước sân: 500mm.
Đảm bảo đủ các vị trí chờ nước cấp cho tất cả các thiết bị sử dụng nước:
Kết nối giữa đường ống và thiết bị sử dụng nước thường sử dụng các nối ren để kết nối, để đảm bảo độ kín nước các vị trí kết nối ren phải sử dụng băng keo lụa hay còn gọi là băng tan. Mội số trường hợp điểm kết nối của thiết bị sử dụng nước có kích thước lớn hoặc nhỏ hơn lỗ chờ thì phải sử dụng các nối giảm để đảm bảo tính kín nước.
Tối đa cho một đường nhánh ống nước đó là 5 thiết bị sử dụng nước. Tránh việc lắp đặt quá nhiều thiết bị chung 1 đường nhánh gây ra các hiện tượng như nước cấp yếu gây cản trở sinh hoạt.

Tiến hành kiểm tra áp lực nước:
Sau khi lắp đặt hệ thống ống cấp nước, phải thực hiện việc kiểm tra áp lực nước đường ống trước khi triển khai tiếp các hạng mục khác như xây hộp gen bao che đường ống, đóng trần,... Việc kiểm tra áp lực nước đảm bảo hệ thống nước hoạt động hiệu quả và không xảy ra các hiện tượng rò rỉ cho khi hệ thống đưa vào sử dụng.
Hệ thống ống thoát nước:
Vật liệu sử dụng:
- Đối với các đường ống thoát nước, ống PVC thường được sử dụng do đặc tính có độ cứng cao và khả năng chống rò rỉ nước tốt.
- Lưu ý trong việc lựa chọn ống và phụ kiện phải đúng áp lực thiết kế.

Hệ thống ống PVC sử dụng cho hệ thống thoát nước.
Vị trí lắp đặt:
Tương tự như đường ống nước cấp, các ống thoát nên được thi công ở các vị trí thuận tiện cho việc bảo trì, bảo dưỡng và sửa chữa khi xảy ra sự cố. Phải có cửa thăm và cửa thăm kích thước phải phù hợp (thông dụng là 400 x 400mm) để thuận tiện trong quá trình bảo trì và sửa chữa đường ống.
Tránh việc lắp đặt đường ống đi ngang qua phòng ngủ, phòng khách, phòng ở…sẽ gây ra tiếng ồn róc rách của nước chảy và bên cạnh đó sẽ làm mất đi tính mĩ quan của căn phòng.
Kích thước đường ống:
Theo các chuyên gia khuyến cáo:
- Đối với ống thoát bồn vệ sinh thì đường kính là Φ > 78 mm.
- Các ống cho bồn tắm, máy giặt, máy rửa bát, bồn rửa mặt kích thước là Φ > 38 mm.
- Các ống thoát chính, kích thước là Φ > 102 mm.
- Đối với ống ngang nên chọn đường kính Φ > 78 mm.
- Đối với ống kết nối các phễu thu sàn thì đường kính là Φ > 90 mm.
- Đối với ống kết nối cầu chắn rác ở sân thượng thì đường kính là Φ > 90 mm.
Kết nối với các thiết bị sử dụng nước:
Đảm bảo chừa đủ các vị trí chờ thoát nước cho tất cả các thiết bị có nhu cầu thoát nước.
Một số lưu ý khi thi công hệ thống thoát nước:
Hệ thống thoát nước được xem là phức tạp và dễ phát sinh các vấn đề cho chủ nhà trong quá trình vận hành như là nghẹt ống nước, rò rỉ nước, mùi hôi,... Các vấn đề trên có thể được xử lý tốt bằng việc thực hiện theo các lưu ý sau:
- Độ dốc của đường ống thoát ngang: việc không tuân thủ đúng độ dốc của đường ống thoát nước ngang là một trong những lý do chính dẫn đến hệ thống thoát nước bị nghẹt. Ngoài ra, trong trường hợp đường ống có độ dốc quá lớn thì chất lỏng chảy với tốc độ quá nhanh và không cuốn theo được chất rắn có trong nước thải, khiến chất rắn ngày một tích tụ lại trong đường ống gây tắc nghẹt. Độ dốc của đường ống thoát nước bẩn (nước thải) và nước mưa cần phải tuân theo chỉ dẫn của thiết kế. Khi không có chỉ dẫn thì độ dốc cho phép đối với hệ thống thoát nước sinh hoạt được quy định như sau:

- Không lắp đặt hoặc lắp đặt không đủ bẫy nước: vào những ngày mưa to hay nắng ghét, mùi hôi thường bốc lên nồng nặc kèm theo khí CH4, Metan…sẽ đi theo hệ thống thoát nước lên đến các vị trí như nhà vệ sinh, thậm chí có một số trường hợp lên đến hệ thống máy lạnh (điều hòa không khí) điều này không những gây khó chịu cho người sử dụng cũng như ảnh hưởng nghiêm trọng đến sức khỏe. Do đó việc sử dụng bẫy nước là rất quan trọng. Bẫy nước hay còn gọi là con thỏ hay siphon là một hệ thống thoát nước hình ống, thiết bị này được thiết kế theo hình cong gấp khúc nhằm chặn lại mùi hôi đến từ cống thoát nước.

Các vị trí khuyến cáo nên sử dụng bẫy nước (con thỏ hay siphon) bao gồm:
- Vị trí quan trọng và hiệu quả nhất phải lắp đặt chính là ở vị trí kết nối với bể tự hoại. Đây chính là nơi phát sinh nhiều mùi hôi và các khí độc hại nhất. Lắp đặt tại đây sẽ ngăn chặn mùi hôi phát sinh từ bể tự hoại cũng như từ hệ thống thoát nước chung của khu vực. Xem hình minh họa bên dưới cho vị trí và cách lắp đặt:

- Tại các phễu thu sàn nhà tắm, nhà vệ sinh để ngăn mùi hôi xâm nhập vào nhà vệ sinh.
- Lắp đặt bẫy nước cho hệ thống thoát nước ngưng của máy lạnh (điều hòa không khí) để tránh mùi hôi xâm nhập trực tiếp vào hệ thống điều hòa không khí.
- Thông thường lavabo, bồn tiểu nam và bồn rửa chén sẽ tích hợp sẵn bẫy nước. Do đó khi lắp đặt phải đảo bảo đủ các phụ kiện để bảo bảo tính chống hôi của thiết bị.
Xem thêm: Khả năng chống cháy của ống Cpvc và ứng dụng của ống cpvc trong thi công hệ thống PCCC
- Không lắp đặt hoặc lắp đặt ống thông khí không đúng thiết kế: Ống thông hơi là hệ thống giúp cung cấp khí để quá trình thoát nước diễn ra nhanh chóng, hiệu quả hơn. Được lắp đặt với hệ thống thoát nước trong nhà, có điểm cuối nằm trên không trung và bố trí cao hơn mái nhà. Việc lắp đặt ống thông hơi phải tuân thủ đúng theo kích thước nêu trong thiết kế để giúp việc thoát nước hiệu quả hơn. Đặc biệt, không được lắp ống thông khí nằm ngang hoặc lắp dưới ống xả trà việc này sẽ làm nước và chất thải lọt vào ống thông khí mất đi tính hoạt động của ống.
- Sử dụng cút nối chữ Y cho các điểm kết nối giữa đường ống dọc xuống trục thoát nước ngang: việc sử dụng cút nối chữ Y đảm bảo dòng chảy của nước thải đi theo một hướng, giúp thoát nước hiệu quả hơn đặc biệt đối với thoát nước bồn cầu như hình mình họa bên dưới:

- Đánh dấu kỹ các đường ống, tránh trường hợp kết nối nhầm giữa ống thoát nước thải, ống thoát phân, ống thoát nước mưa và ống thoát hơi.
- Để đảm bảo tính chống thấm cho các đường ống thoát nước xuyên sàn phải đặt sẵn ống chờ thoát nước sàn, lavabo và bồn cầu trước khi đổ bê tông.

- Trong trường hợp phát sinh đường ống thoát xuyên sàn, khuyến cáo không nên đục sàn để đi ống mà phải sử dụng khoan rút lõi để tránh ảnh hưởng đến kết cấu sàn.
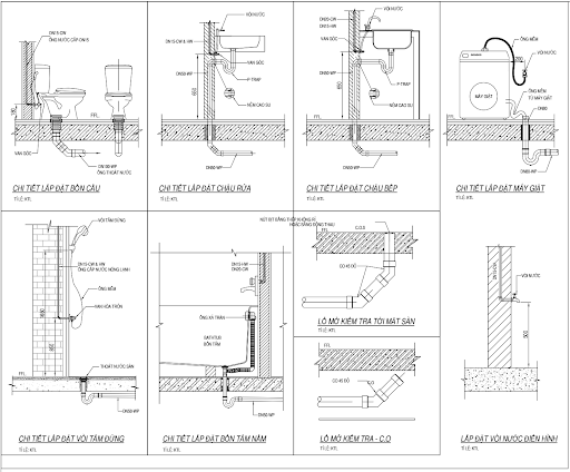
Sơ đồ lắp đặt thông dụng cho hệ thống ống cấp thoát nước:

Công ty Lan Thanh là đơn vị uy tín và chuyên nghiệp trong lĩnh vực cung cấp các phụ kiện vật tư ngành nước. Tại đây, bạn có thể tìm thấy các sản phẩm ống thoát nước chất lượng với nhiều loại và kích cỡ khác nhau để đáp ứng nhu cầu sử dụng của khách hàng. Bên cạnh đó, công ty Lan Thanh cũng cam kết cung cấp cho khách hàng sản phẩm chất lượng, giá cả hợp lý và dịch vụ hậu mãi tốt. Vì vậy, nếu bạn đang có nhu cầu lắp đặt đường ống nước, hãy liên hệ với công ty Lan Thanh để được tư vấn và hỗ trợ tốt nhất.






